Kelowna, BC

Unit 101 – 2544 Enterprise Way

For Lease | Industrial | 10,669 SF | $23.00/SF

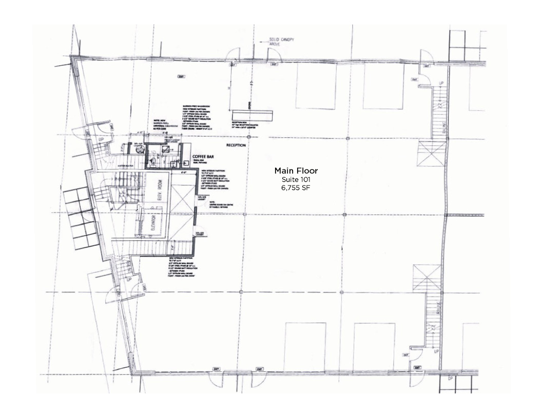
Main Floor Plan
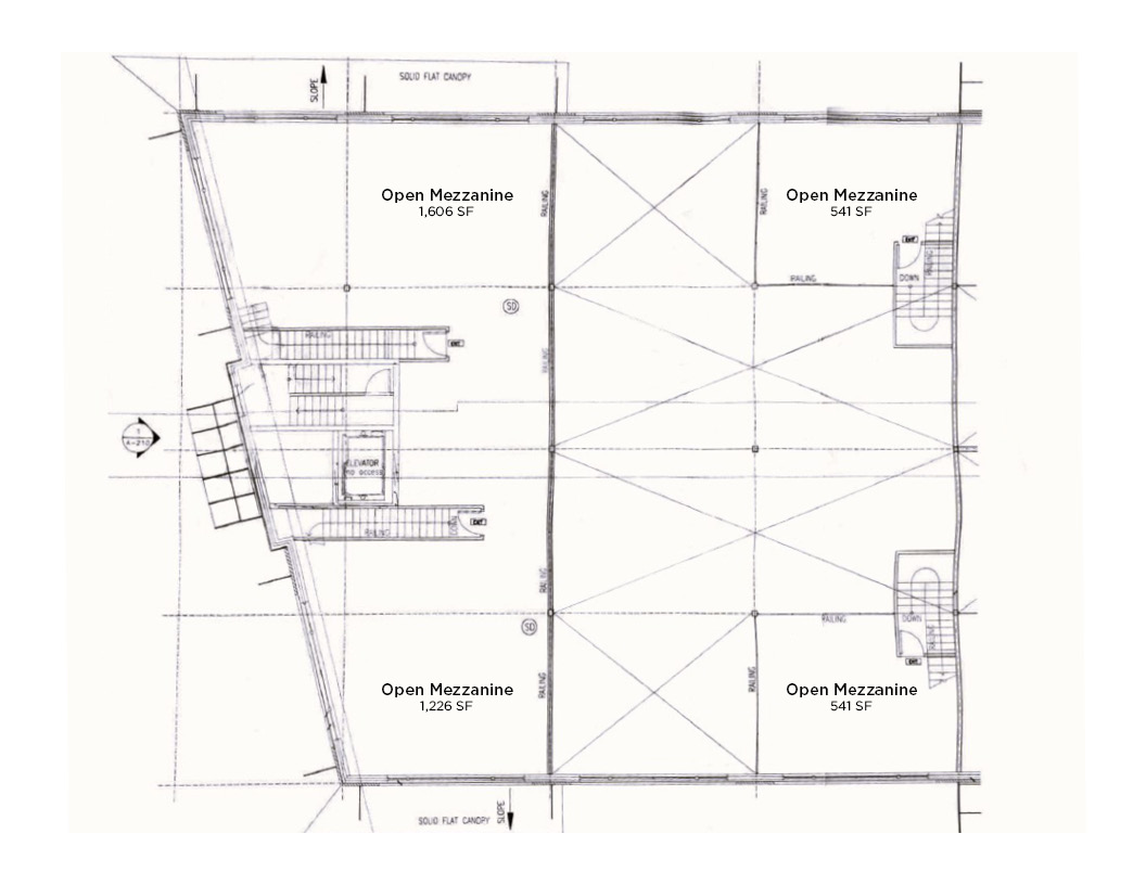
Mezz Floor Plan
Property Info

Property Description

SUBLEASE OPPORTUNITY – 2544 Enterprise Way is a modern mixed-use building ideally situated in one of the busiest commercial corridors in Kelowna. Unit #101 features extensive glazing, on-site parking, grade loading with overhead doors, and prime signage exposure along Enterprise Way. Offering a total gross leasable area of 10,669 SF, which includes 6,755 SF of ground floor area and 3 separate mezzanines, providing an additional 3,914 SF (mezzanine #1 = 611 SF, mezzanine #2 = 611 SF, and mezzanine #3 = 2,692 SF). Neighboring businesses include Home Depot, Wal-Mart, HomeSense, PetSmart, Dollarama, Cactus Club Cafe, Golf Town, and a variety of automotive dealerships. Zoned C2 allowing for a variety of uses. Available November 1st, 2025; sublease expires October 31, 2032.

  • Transaction Type: For Lease
  • Property Type: Industrial
  • Lease Type: Triple Net
  • Sub Area: Central Okanagan/DM – Dilworth Mountain
  • PID: 025-119-923
  • Zoning: C2
  • Size (approx.): 10,669 SF
  • Net Rent: $23.00/SF
  • Est. NNN: $7.28/SF
  • MLS ID: 10364117
No features currently listed.
Request a Viewing
Contact

Contact the Listing Agents

Contact the Listing Agents Directly